About Us
Team
Advertising
Saturday, 25 April 2026
Sign in
Subscribe
Retirement Living
Development
Capital & Finance
Government & Policy
Housing News
Innovation & Technology
Legal Matters
Mergers & Acquistions
Private Aged Care
Home Care
Capital & Finance
Government & Policy
Health
Innovation & Technology
Legal Matters
Mergers & Acquistions
Workforce
Aged Care
Capital & Finance
Government & Policy
Health
Innovation & Technology
Legal Matters
Mergers & Acquistions
Workforce
Lend Lease
Development
Capital & Finance
Government & Policy
Housing News
Innovation & Technology
Legal Matters
Mergers & Acquistions
Industry Topics
Opinion
Awards
Research
Dementia Care & Support
International
People & Sector Movements
Leaders in focus
Saturday
Elevator Pitch
Video
Retirement Living
Development
Capital & Finance
Government & Policy
Housing News
Innovation & Technology
Legal Matters
Mergers & Acquistions
Private Aged Care
Home Care
Capital & Finance
Government & Policy
Health
Innovation & Technology
Legal Matters
Mergers & Acquistions
Workforce
Aged Care
Capital & Finance
Government & Policy
Health
Innovation & Technology
Legal Matters
Mergers & Acquistions
Workforce
Lend Lease
Development
Capital & Finance
Government & Policy
Housing News
Innovation & Technology
Legal Matters
Mergers & Acquistions
Industry Topics
Opinion
Awards
Research
Dementia Care & Support
International
People & Sector Movements
Leaders in focus
Saturday
Elevator Pitch
Video
About
Meet The Team
Advertise With Us
Privacy Policy
FAQ
Contact
Disclaimer
Sign in
Subscribe
Developments
Topic - Developments
Retirement And Community Living
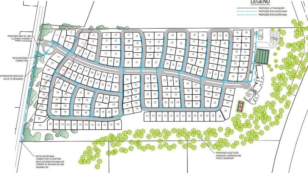
New 232-home LLC planned for Bundaberg, QLD
by
Section Editor
December 12, 2022
Topic - Developments
Retirement And Community Living
Warrnambool retirement village approved after dropping private golf course
by
Section Editor
December 12, 2022
Topic - Developments
Topic - Housing News
New seniors living development planned next door to Calvary aged care home on Sydney’s Northern Beaches
by
Section Editor
December 12, 2022
Topic - Developments
Housing
Second BTR tower proposed for Fortitude Valley, QLD
by
Section Editor
December 12, 2022
Buying
Topic - Housing News
Stockland launches Moreton Bay LLC to the market, more than 50 homes already sold
by
Section Editor
December 12, 2022
Topic - Developments
Topic - Housing News
Catholic Healthcare nears completion on Blacktown retirement village expansion
by
Section Editor
December 12, 2022
Topic - Developments
Retirement And Community Living
Treeview Estates near Lithgow, NSW, opens redeveloped lifestyle centre
by
Section Editor
December 12, 2022
Topic - Aged Care
Topic - Developments
Australian Unity opens new RAC home at its Kilsyth, VIC, retirement village
by
Section Editor
December 07, 2022
Topic - Aged Care
Topic - Developments
TLC gears up to open intergenerational Whitewater facility, including residential care, in Melbourne
by
Lauren Broomham
November 30, 2022
Topic - Developments
Retirement And Community Living
GemLife buys 15 acres at former northern NSW golf course for new 300-home LLC
by
Section Editor
November 28, 2022
Topic - Developments
Housing
22-storey continuum-of-care village proposed for Gold Coast
by
Section Editor
November 28, 2022
Housing
Retirement And Community Living
Fresh Hope Communities closes Tasman Court retirement village in Thirroul, NSW
by
Section Editor
November 28, 2022
←
Newer Posts
Page 113 of 301
Older Posts
→