Saturday, 25 April 2026

Lewis Land enters the land lease market, lodging DA for $20M 133-home manufactured housing estate on NSW Mid-North Coast

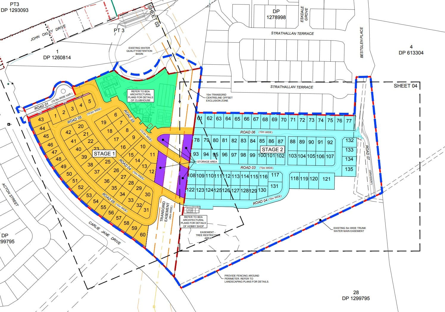
The proposed land lease community will be part of the Sovereign Hills masterplan site at Thrumster, a suburb of Port Macquarie, 390km north-northeast of Sydney’s CBD. Port Macquarie Hastings Council has put the development application for Barton...

Ian Horswill profile image
by Ian Horswill
Lewis Land enters the land lease market, lodging DA for $20M 133-home manufactured housing estate on NSW Mid-North Coast

The proposed land lease community will be part of the Sovereign Hills masterplan site at Thrumster, a suburb of Port Macquarie, 390km north-northeast of Sydney’s CBD. 

Port Macquarie Hastings Council has put the development application for Barton Ridge East Manufactured Housing Estate, which has been prepared by Hopkins Consultants with the applicant PM Land, on exhibition. However, the documents show it is for Lewis Developments (part of Lewis Land), the developer behind Sovereign Hills residential masterplan site. 

The proposal is to build on site, citing the council’s approval of on site building at Ocean Club Resort, Lake Cathie, and Hometown Australia’s Laurieton Residential Resort at Lakewood. 

Check out the retirement villages, lifestyle resorts and any availability on the #1 website villages.com.au

Read More

puzzles,videos,hash-videos