Thursday, 14 May 2026

Major RAC development proposed for Sunnybank Hills, Brisbane

A development application has been lodged with Brisbane City Council to build a residential aged care facility with two main buildings and three smaller buildings in Sunnybank Hills, a large suburb 15km south of Brisbane’s CBD. Sunny Care Pty Ltd...

The Weekly Source   profile image
by The Weekly Source
Major RAC development proposed for Sunnybank Hills, Brisbane

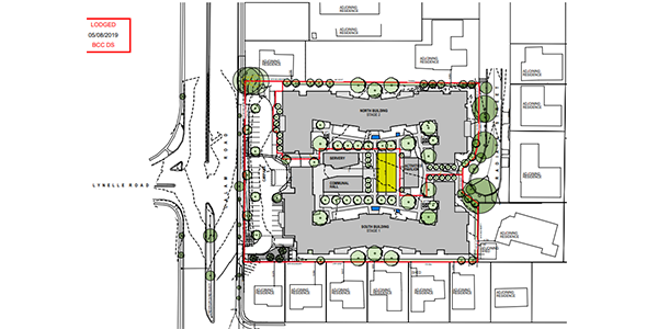
A development application has been lodged with Brisbane City Council to build a residential aged care facility with two main buildings and three smaller buildings in Sunnybank Hills, a large suburb 15km south of Brisbane’s CBD.

Sunny Care Pty Ltd is seeking to construct a two-storey 136-bed building on an 8,182-sqm lot at 136A Calam Road and 15 Radiata Street, Sunnybank Hills.

A report prepared by Urbis on behalf of the applicant said that it was a rare opportunity to provide a significant aged care facility within an established urban area as infill development.

The existing home and ancillary structures will be demolished if approval given. Stage 1 of the facility is for 61 aged care beds, administration offices and communal facilities and Stage 2 will be for 75 aged care beds and a hairdresser, servery, activities pavilion, wellness centre offices and communal hall.

“The proposed development will provide a mix of care options to ensure that the changing care needs of residents will be provided for. This includes low care, dementia ambulatory care and high care needs,” said the application.

Read More

puzzles,videos,hash-videos