About Us
Team
Advertising
Sunday, 31 May 2026
Sign in
Subscribe
Retirement Living
Development
Capital & Finance
Government & Policy
Housing News
Innovation & Technology
Legal Matters
Mergers & Acquisitions
Private Aged Care
Home Care
Capital & Finance
Government & Policy
Health
Innovation & Technology
Legal Matters
Mergers & Acquisitions
Workforce
Aged Care
Capital & Finance
Government & Policy
Health
Innovation & Technology
Legal Matters
Mergers & Acquisitions
Workforce
Land Lease
Development
Capital & Finance
Government & Policy
Housing News
Innovation & Technology
Legal Matters
Mergers & Acquisitions
Industry Topics
Opinion
Awards
Research
Dementia Care & Support
International
People & Sector Movements
Leaders in focus
Saturday
Elevator Pitch
Video
Retirement Living
Development
Capital & Finance
Government & Policy
Housing News
Innovation & Technology
Legal Matters
Mergers & Acquisitions
Private Aged Care
Home Care
Capital & Finance
Government & Policy
Health
Innovation & Technology
Legal Matters
Mergers & Acquisitions
Workforce
Aged Care
Capital & Finance
Government & Policy
Health
Innovation & Technology
Legal Matters
Mergers & Acquisitions
Workforce
Land Lease
Development
Capital & Finance
Government & Policy
Housing News
Innovation & Technology
Legal Matters
Mergers & Acquisitions
Industry Topics
Opinion
Awards
Research
Dementia Care & Support
International
People & Sector Movements
Leaders in focus
Saturday
Elevator Pitch
Video
About
Meet The Team
Advertise With Us
Privacy Policy
FAQ
Contact
Disclaimer
Sign in
Subscribe
Section Editor
1690 Posts
Topic - Developments
Topic - Housing News
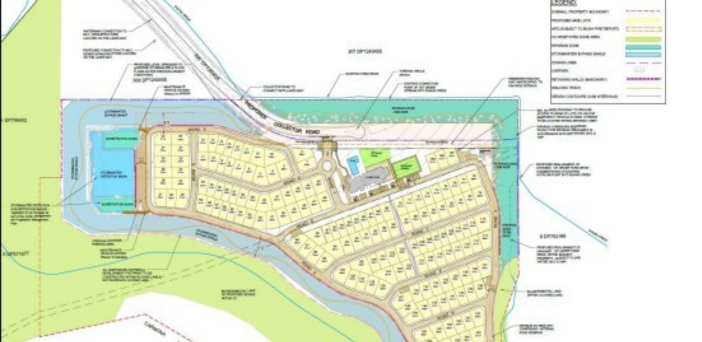
NSW Land and Environment Court approve Serenitas’ lifestyle resort in Forster
by
Section Editor
June 05, 2023
Topic - Housing News
Retirement And Community Living
”Our care suite product now a core part of future”
by
Section Editor
June 05, 2023
Topic - Developments
Topic - Housing News
Respect opens its first greenfield retirement village in Launceston, TAS
by
Section Editor
June 05, 2023
Housing
Topic - Housing News
Closed Palm Lake Resort retirement village leased to QLD Govt for homeless relief
by
Section Editor
June 05, 2023
Topic - Developments
Topic - Housing News
Residents’ fierce fight over proposed retirement village in Torquay, VIC
by
Section Editor
June 05, 2023
Topic - Developments
Topic - Housing News
Sydney property developer takes Merimbula senior housing plan to NSW Land and Environment Court
by
Section Editor
June 05, 2023
News & Issues
Retirement And Community Living
Village resident wins fight against retirement village operator to have two budgies in a cage
by
Section Editor
June 05, 2023
Topic - Aged Care
Topic - Housing News
Palm Lake Care forced to buy house for aged care facility manager near Bundaberg
by
Section Editor
June 04, 2023
Topic - Aged Care
Topic - Housing News
Lyndoch Living explains why it has to shut May Noonan aged care home in VIC
by
Section Editor
June 01, 2023
Topic - Aged Care
Ageing
The Government wants a national conversation on Plan B – providers need to speak up
by
Section Editor
June 01, 2023
Topic - Aged Care
Ageing
Only 10% of aged care homes prepared for new staffing rules: UTS report
by
Section Editor
June 01, 2023
Topic - Aged Care
Ageing
Dutton supports increased consumer contributions in aged care
by
Section Editor
June 01, 2023
←
Newer Posts
Page 6 of 141
Older Posts
→