Thursday, 23 April 2026

NSW Land and Environment Court approve Serenitas’ lifestyle resort in Forster

“The agreed position of the parties is for the Court to grant consent to the amended Development Application, with conditions,” said the court in a statement published on 31 May

Section Editor profile image
by Section Editor
NSW Land and Environment Court approve Serenitas’ lifestyle resort in Forster

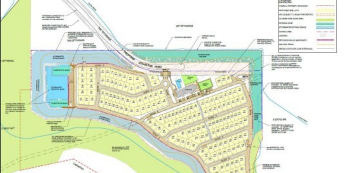
The land lease operator has had its appeal to build a 163-site lifestyle resort at Forster on the Mid North Coast of NSW upheld. Serenitas lodged its development application with MidCoast Council on 7 March. The original DA was notified to residents, with four submissions received. The operator appealed against the deemed refusal of the development application as no decision was made. Subsequently the Council agreed for Serenitas, a joint venture between private equity business Tasman Capital Partners, and GIC, Singapore’s sovereign wealth fund, to amend its plans and documents that support the DA. The Land and Environment Court also arranged a conciliation conference, which at the parties’ request, was held in person, after a site view.

“The agreed position of the parties is for the Court to grant consent to the amended Development Application, with conditions,” said the court in a statement published on 31 May.

The Forster site will be the second over 50s land lease community built in NSW by Serenitas. The group has a Thyme community at Evans Head on the Far North Coast and owns a portfolio of 25 land lease communities across NSW, VIC, QLD and WA.

Read More

puzzles,videos,hash-videos