Broadlands appeals NSW South Coast land lease rejection
NSW land lease operator Broadlands will appeal to the Land and Environment Court after Eurobodalla Shire Council rejected its development application (DA) in May. Consultants Urbis told a public meeting that a revised plan is now on exhibition as part of the process. The meeting formed part of a...
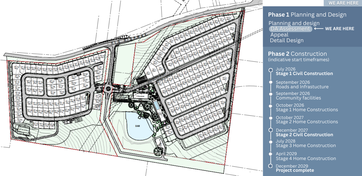
NSW land lease operator Broadlands will appeal to the Land and Environment Court after Eurobodalla Shire Council rejected its development application (DA) in May. Consultants Urbis told a public meeting that a revised plan is now on exhibition as part of the process.
The meeting formed part of a social impact assessment by Urbis, which may be used in the appeal. The proposal was first presented to council officers in February 2023, with the DA lodged in March 2024.

The $24.1 million proposal is for 200 homes, with an average size of 250sqm, on 12.55ha of land, zoned R2 for low-density residential, in the town of Narooma, 347km south of Sydney's CBD. The site would also include facilities such as a community clubhouse, cinema, pickleball courts, and pool. A billboard with the projected dates for the project was posted outside the meeting. Broadlands also has a State Significant Development Application for a 101-home land lease community with two two-storey community facilities, designed by architects King + Campbell, in South West Rocks, a town on NSW's Mid North Coast, on exhibition.
Broadlands' first community was built in Green Point on the NSW Central Coast, where demand has far exceeded supply. The operator has since expanded into Tamworth (80-home Stage 1 complete), Muswellbrook (31-home Stage 1 complete) and Harrington (106 homes).