Wednesday, 29 April 2026

Plans for land lease community cause rift in Bega Valley town

A development proposal for a new 21-site manufactured housing estate at Cobargo in southeast NSW, has hit a stumbling block with some residents questioning the small size of the blocks. Sydney-based contract manager, Darren Klower filed an...

The Weekly Source   profile image
by The Weekly Source
Plans for land lease community cause rift in Bega Valley town

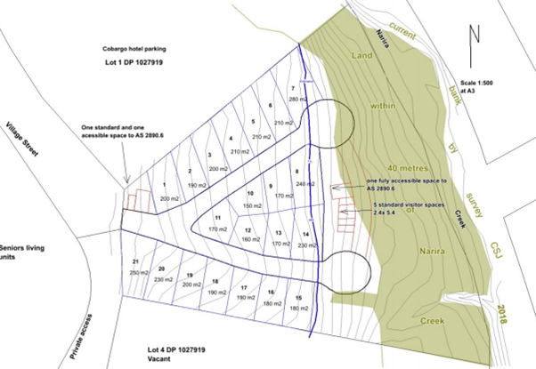
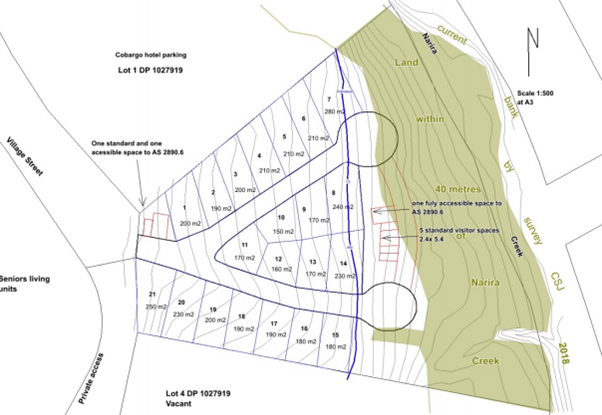
A development proposal for a new 21-site manufactured housing estate at Cobargo in southeast NSW, has hit a stumbling block with some residents questioning the small size of the blocks.

Sydney-based contract manager, Darren Klower filed an application for the project through Garret Barry Planning Services Pty Ltd, saying that the land lease model had proven popular with retirees and lower income earners in other areas.

The average age of a Cobargo resident is 52 years, according to data from the Australian Bureau of Statistics (ABS), while the median household income is $760 per week.

Each home will be priced from $220,000, according to the development submission.

However, many within the community have called into question the size of each site, listed from as small as 150sqm to 280sqm.

A council spokesperson told Bega District News that current regulations limited the smallest dwellings allowed to just 130sqm.

Some residents are also supportive of the development, arguing it will meet demand for affordable housing in the area.

The project is open to public consultation until 11 December 2020.

Read More

puzzles,videos,hash-videos