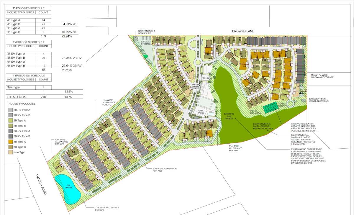
Plans lodged for 218-dwelling land lease community in Tamworth
A 218-home land lease community has been proposed for Oxley Vale, on the northern outskirts of Tamworth, NSW’s third-largest inland city, 420km from Sydney.
A 218-home land lease community has been proposed for Oxley Vale, on the northern outskirts of Tamworth, NSW’s third-largest inland city, 420km from Sydney.
The staged development is planned by Browns Road Development Pty Ltd, with Land Dynamics Australia preparing the application and deBlanco Design Studio as architect.

Plans include a large community clubhouse with a reception area, library, games and entertainment room, kitchen and bar, dining and function space, and consultation rooms. A gym, outdoor pool, pickleball and tennis courts, and a bowling green would sit alongside the clubhouse. Provision has also been made for 19 caravan and boat storage spaces and a Men’s Shed.
"The proposal will accommodate the needs of an ageing population and supports a high standard of living for future residents and provides for more choice of housing in the market," states the Land Dynamics Australia Statement of Environmental Effects."The proposal is considered within the public interest as it will assist with housing shortage issues and housing targets because of increasing populations."

The land is zoned R1 General Residential, RU4 Primary Production Small Lots and C3 Environmental Management under the Tamworth Regional LEP 2010. The proposed land lease community is a permissible use in the R1 zone and also permitted in the RU4 zone under State Environmental Planning Policy (Housing) 2021, given the rural land adjoins urban-zoned land.