Surf Coast Shire Council approved retirement village then refuses to sell public land for its development in Torquay
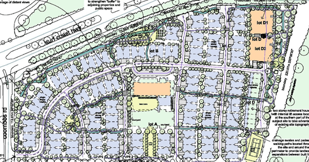
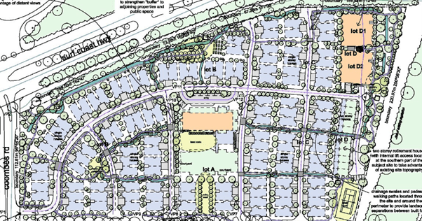
In August, the council approved on a casting vote a $50 million village of 120 detached single storey independent living units, three apartment buildings of 16 one-bedroom apartments and 60 two-bedroom apartments, and a central two and three storey...
In August, the council approved on a casting vote a $50 million village of 120 detached single storey independent living units, three apartment buildings of 16 one-bedroom apartments and 60 two-bedroom apartments, and a central two and three storey clubhouse, along with an estimated 355 car parking spaces. The huge development lodged by Sincock Planning in the seaside suburb of Torquay, 97km southwest of Melbourne, included the use of a small section of public land.

At a Special Council Meeting on Tuesday, 3 October, a motion recommended to sell the land. It was defeated after a public outcry.
“We expect the developer will need to rethink their design now that Council has decided that Cypress Lane and the public reserve is not for sale,” Councillor Rose Hodge told Bay 93.9. “This land will be developed no matter what we can do. You know there will be development on it, but I’m not going to vote on what might happen at VCAT, and what might happen with the planning.”
The SOURCE: This may not be the end of the story as Victorian Government now has the power to take housing developments of $15 million and over from local governments.