20 new social housing units for seniors built in Hurstville in Sydney's south
Safe and accessible homes for up to 37 tenants have been built by Tom Zeaiter Constructions for NSW Government's Homes NSW. The development sees 12 two-bedroom and 8 one-bedroom units. Each of the 20 units has their own courtyard space or balcony...
Safe and accessible homes for up to 37 tenants have been built by Tom Zeaiter Constructions for NSW Government's Homes NSW.
The development sees 12 two-bedroom and 8 one-bedroom units. Each of the 20 units has their own courtyard space or balcony.
Ground floor units include step free access, accessible bathrooms and a private courtyard or balcony space.
Last year, NSW Government built 16 new social homes, 8 one-bedroom and 8 two-bedrooms, for seniors in Busby, 37km southwest of Sydney's CBD, for $6.8 million.
The Source reported in January that the NSW Govt's Land and Housing Corporation is building 630 seniors living homes in Sydney's southwest.

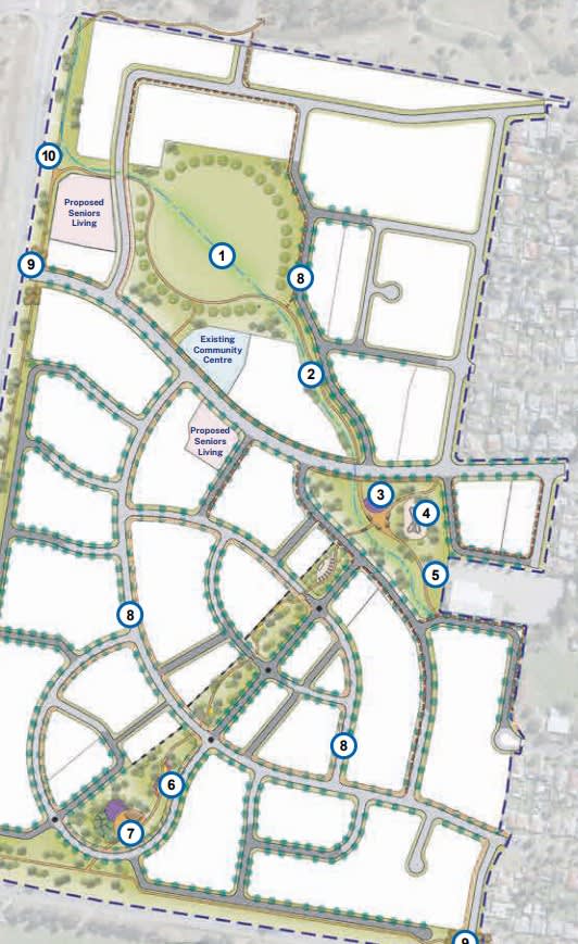
The NSW Department of Planning, Housing and Infrastructure is considering a proposal to rezone land in the Tolland Estate housing area, in the regional city of Wagga Wagga, 452km southwest of Sydney, which if successful, will see it redeveloped with a mix of new social, affordable, seniors and private housing, with upgraded community facilities, roads and green spaces.
Browse villages.com.au for the latest on Seniors Living including availability.