Monday, 16 March 2026

Northern Melbourne Council approves four-storey aged care development – but do they have an operator?

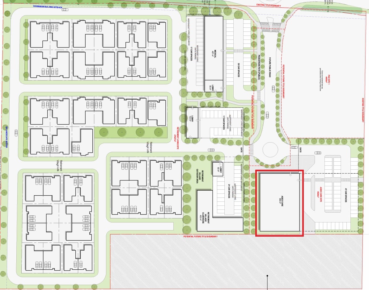
City of Whittlesea local government area has approved plans to build a medical and aged care complex on a vacant site 40km from the Melbourne CBD, with Mayor Councillor Martin Taylor saying the proposal "meets a community need for medical and aged services".

Caroline Egan profile image
by Caroline Egan
Northern Melbourne Council approves four-storey aged care development – but do they have an operator?

The local Council has approved plans to build a medical and aged care complex on a 4.5ha vacant site in Whittlesea, on the northeastern outskirts of Melbourne, 40km from the city centre. The plans include a four-storey aged care home, three-storey medical centre, one- to two-storey retirement village, and two commercial sites. The Council has told The Weekly SOURCE that the residential aged care home will be developed by a private developer and operated by a specialist provider, but declined to state if an operator had been contracted yet. Plans for the site, which is opposite Funfields Theme Park, received 29 submissions, including 17 in opposition. Feedback from those consultations have been incorporated into the latest plans, including changes to traffic management, building heights, and setbacks.

City of Whittlesea Mayor
Councillor Martin Taylor

The proposal responds to Victorian state planning policy which aims to increase the number of residential aged care facilities in the state.

“The development plan fulfils the requirements of the Whittlesea Planning Scheme and meets a community need for medical and aged services,” said City of Whittlesea Mayor Councillor Martin Taylor. “The proposed uses of the site will generate employment opportunities for residents and allow more of Whittlesea’s older residents to remain in the community as they age. Importantly, this means that people will be able to maintain their existing social connections with families and friends.”

Last year, the City of Whittlesea Council announced the expansion of its Ageing Well Program to include Home Care Packages.

Read More

puzzles,videos,hash-videos