About Us
Team
Advertising
Saturday, 30 May 2026
Sign in
Subscribe
Retirement Living
Development
Capital & Finance
Government & Policy
Housing News
Innovation & Technology
Legal Matters
Mergers & Acquisitions
Private Aged Care
Home Care
Capital & Finance
Government & Policy
Health
Innovation & Technology
Legal Matters
Mergers & Acquisitions
Workforce
Aged Care
Capital & Finance
Government & Policy
Health
Innovation & Technology
Legal Matters
Mergers & Acquisitions
Workforce
Land Lease
Development
Capital & Finance
Government & Policy
Housing News
Innovation & Technology
Legal Matters
Mergers & Acquisitions
Industry Topics
Opinion
Awards
Research
Dementia Care & Support
International
People & Sector Movements
Leaders in focus
Saturday
Elevator Pitch
Video
Retirement Living
Development
Capital & Finance
Government & Policy
Housing News
Innovation & Technology
Legal Matters
Mergers & Acquisitions
Private Aged Care
Home Care
Capital & Finance
Government & Policy
Health
Innovation & Technology
Legal Matters
Mergers & Acquisitions
Workforce
Aged Care
Capital & Finance
Government & Policy
Health
Innovation & Technology
Legal Matters
Mergers & Acquisitions
Workforce
Land Lease
Development
Capital & Finance
Government & Policy
Housing News
Innovation & Technology
Legal Matters
Mergers & Acquisitions
Industry Topics
Opinion
Awards
Research
Dementia Care & Support
International
People & Sector Movements
Leaders in focus
Saturday
Elevator Pitch
Video
About
Meet The Team
Advertise With Us
Privacy Policy
FAQ
Contact
Disclaimer
Sign in
Subscribe
Record Breaking
Community Living
Retirement And Community Living
This $55M land lease community club looks like a 5-star resort – and it’s just for over-50s
by
Ian Horswill
October 27, 2025
Community Living
Retirement And Community Living
GemLife unveils its most expensive single-storey country club at Moreton Bay, QLD
by
Ian Horswill
October 20, 2025
The Thursday Source
Topic - Aged Care
Lowest number of aged care beds in history added in 2024-25
by
Lauren Broomham
October 17, 2025
Mergers & Acquisitions
Topic - Acquisitions
GemLife reveals eight Aliria planned land lease communities and will move into South Australia
by
Ian Horswill
July 22, 2025
Record Breaking
Development
Stockland debuts largest-ever land lease project, Halcyon Bayside, from $900K
by
Ian Horswill
June 23, 2025
Development
Topic - Aged Care
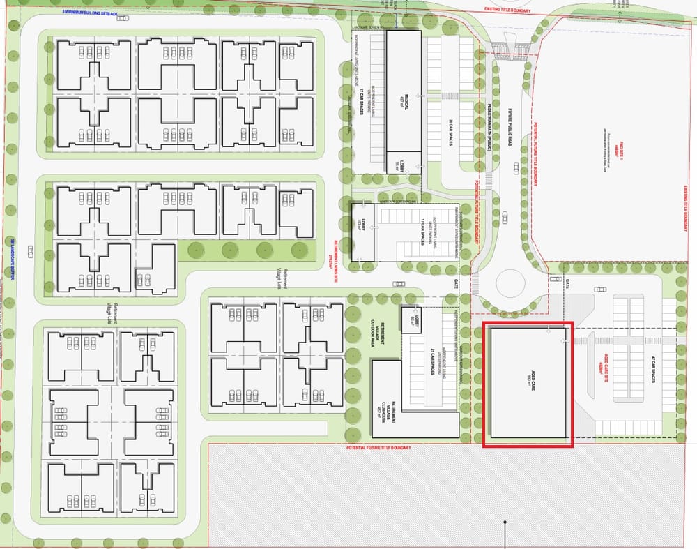
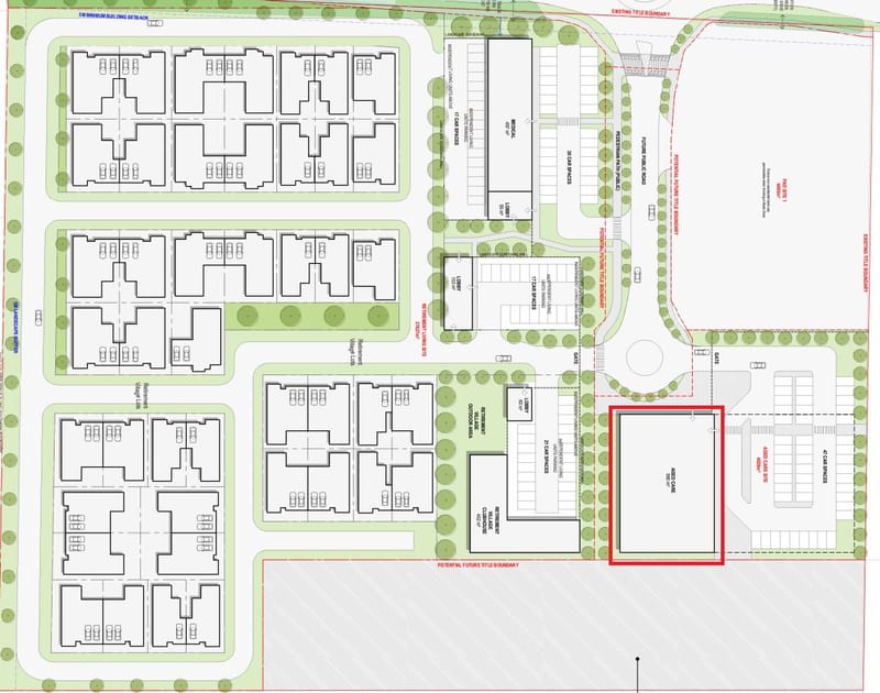
Northern Melbourne Council approves four-storey aged care development – but do they have an operator?
by
Caroline Egan
June 04, 2025
Development
Record Breaking
Levande tops out Sydney vertical village, marking major milestone in $3B growth plan
by
Lauren Broomham
April 28, 2025
Mergers & Acquisitions
Topic - Acquisitions
Goodwin hits a six with purchase of Araluen Retirement Village, Canberra
by
Ian Horswill
October 29, 2024
Development
Topic - Aged Care
Aegis announces new eight-storey health facility including aged care in Perth
by
Caroline Egan
October 10, 2024
Development
Community Living
Baby Boomers will pay if their expectations are exceeded: Glen Brown, Reside Communities
by
Ian Horswill
June 18, 2024
Record Breaking
Development
Uniting’s biggest-ever project finally advances after seven years with $376M budget
by
Ian Horswill
June 17, 2024
Record Breaking
Development
Palm Lake Resort's Pelican Waters land lease community breaks record with $4M+ sale
by
Ian Horswill
June 04, 2024
Page 1 of 12
Older Posts
→