Uniting’s biggest-ever project finally advances after seven years with $376M budget
The Not For Profit has revealed the size of its proposal for its Uniting War Memorial Hospital site in Waverley, 7km east of Sydney’s CBD. Simon Furness, Director of Uniting’s Housing and Property, bemoaned at the Property Council Retirement...
The Not For Profit has revealed the size of its proposal for its Uniting War Memorial Hospital site in Waverley, 7km east of Sydney’s CBD.
Simon Furness, Director of Uniting’s Housing and Property, bemoaned at the Property Council Retirement Outlook Forum in Sydney in February that it had been seven years and not even a development application had been achieved. He tells us he hoped to have a development application submitted in August.
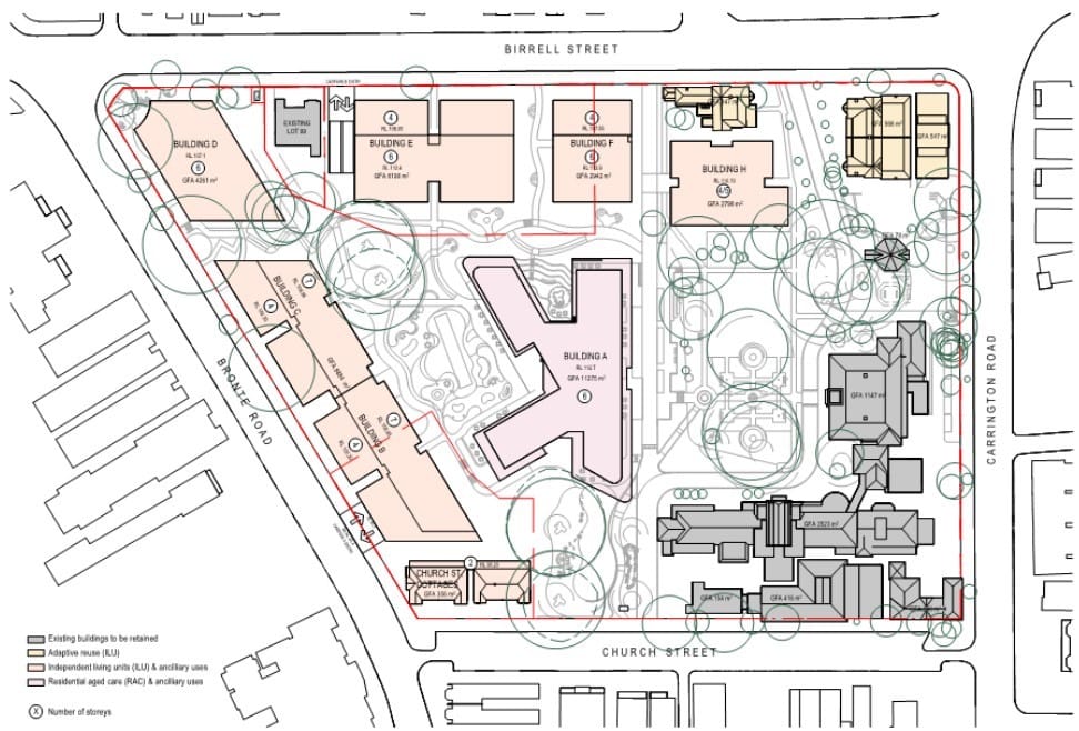
A scoping report by Willowtree Planning has been given to the NSW Planning & Environment Department which shows it plans for 210 – 230 seniors living units and 105 – 114 new aged care beds across a total of 43,000sqm of floor area. These units will be split between six buildings ranging from 14 – 24m in height.
“While costs have not yet been finalised, the Capital Investment Value of this proposed development is expected to be approximately $375,999,779,” said the report.

The War Memorial Hospital is an important building within the Waverley Estate that will always be preserved and respected and is not being redeveloped. The plan allows for expansion of hospital services, which will take place with NSW Health and with respect to the site’s heritage value.
The site is predominately zoned SP2 Infrastructure (Health Services Facilities) and partly R3 Medium Density Residential under the Waverley LEP. Uniting is seeking ancillary land uses to support future operational functions. This includes short-term accommodation and food and drink premises, such as cafés and restaurants.
The plans to expand the site have followed years of negotiation with Waverley Council to establish a planning framework that is capable of supporting Uniting’s plans. This has included two rezoning proposals to improve the site’s height limit and floor space ratio, as well as allowing ‘seniors housing’ to be an additional permitted use on the site, which is prohibited under the SP2 Infrastructure zone under Waverley LEP.
Browse villages.com.au for the latest on Seniors Living including availability.
Oak Tree Group co-founder Mark Bindon's view on the future of retirement living: LEADERS SUMMIT 2024