New $15m retirement village proposed by Respect at Prospect, south of Launceston in Tasmania
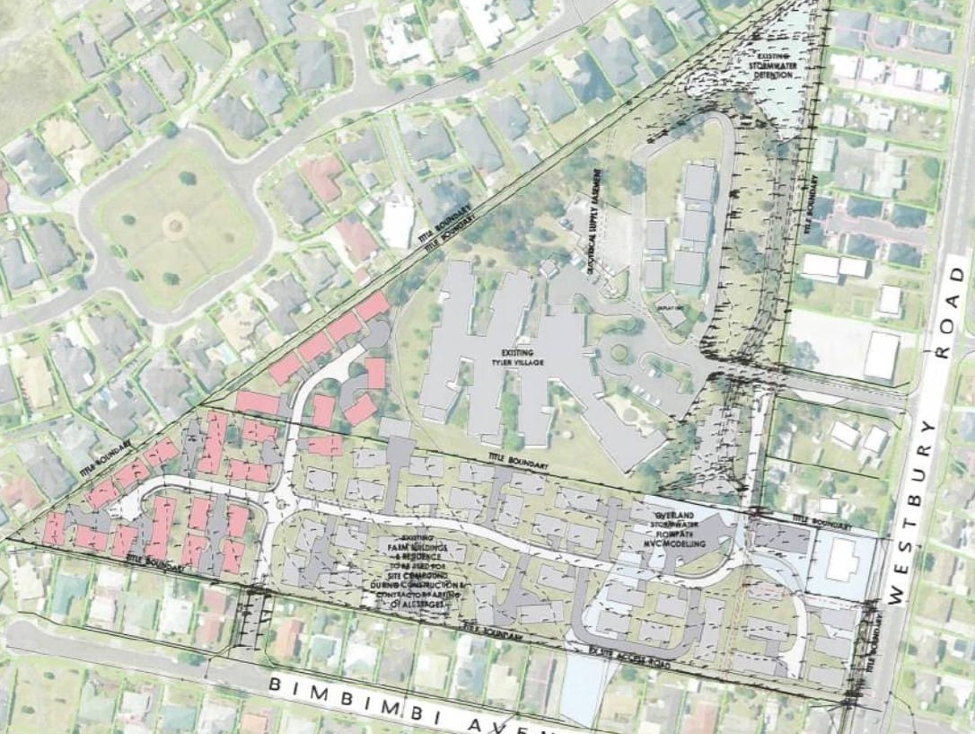
A development application from Respect to build 65 new independent living units and a community centre in Prospect (pictured), 4km south of Launceston in Tasmania, is being assessed by the Meander Valley Council. The $15 million development, called...
A development application from Respect to build 65 new independent living units and a community centre in Prospect (pictured), 4km south of Launceston in Tasmania, is being assessed by the Meander Valley Council. The $15 million development, called Reed Estate, would be built in three stages.

The first stage would see the completion of 19 units and the community centre, then a further 21 units during stage two and the remaining 25 in stage three.
Forty of the units will contain two-bedrooms, a study and a single lock up garage, 13 will be two-bedrooms with a study and double lock up garage while the remaining 12 units will be three-bedroom with a walk-in-wardrobe and double lock up garage, The Examiner reported. Respect is an independent Not For Profit organisation that operates five aged care and retirement locations in Tasmania, with the Reed Estate, named after one of the founders of the Salvation Army, Henry Reed, being its sixth.