Wednesday, 20 May 2026

New 232-home LLC planned for Bundaberg, QLD

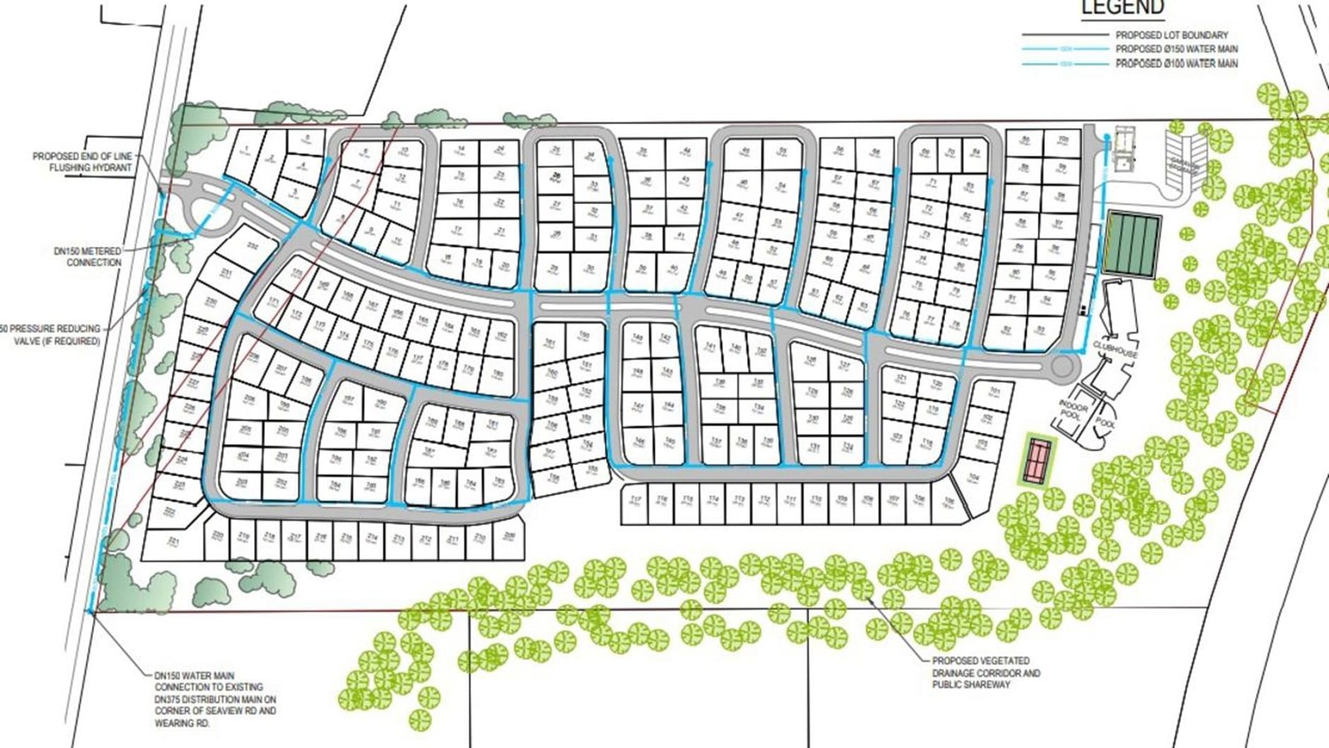
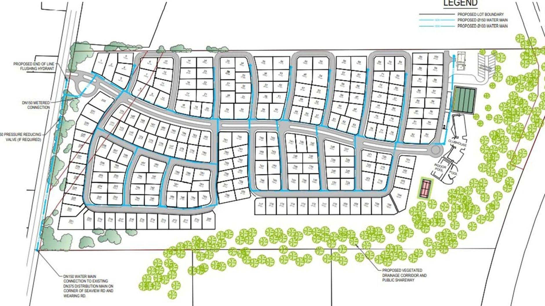
A new 232-home land lease community has been proposed for the seaside town of Bargara, near Bundaberg in Queensland. The community by Seaview Road Developments will include 232 two- and three-bedroom homes, some with space for caravans or RVs, along...

Section Editor  profile image
by Section Editor
New 232-home LLC planned for Bundaberg, QLD
Image: Seaview Road Developments

A new 232-home land lease community has been proposed for the seaside town of Bargara, near Bundaberg in Queensland. The community by Seaview Road Developments will include 232 two- and three-bedroom homes, some with space for caravans or RVs, along with a clubhouse, pool, and other amenities; if approved, the first stage will comprise 27 dwellings. In the Development Application, planners InsiteSJC said the community would provide local retirees with more housing options and ease accommodation shortages in the area.

“Bundaberg, in particular its coastal strip between Elliott Heads and Burnett Heads, is experiencing a surge in demand for housing – to the extent that demand outstrips supply and currently results in housing shortages in all market segments. “Given the ageing population and lack of retirement village options in coastal strip area, the proposal would provide for a need in the area, especially given the current high demand for housing,” the application read.

Ingenia last year bought oceanfront land in Bargara for a new LLC.

Read More

puzzles,videos,hash-videos