Thursday, 21 May 2026

Residents push back against McCloy Group's proposed 241 ILU Port Macquarie retirement village

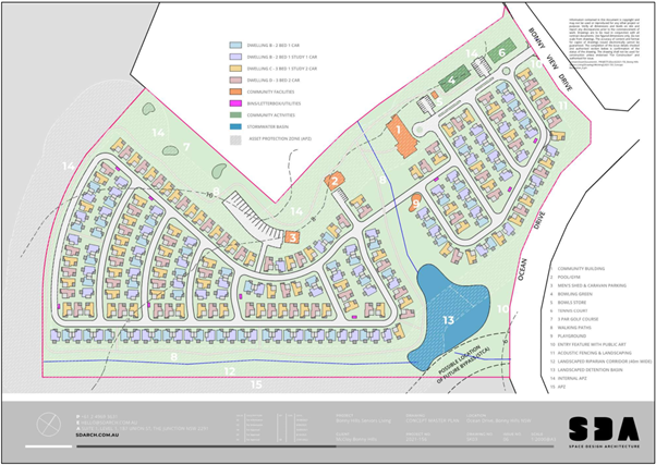
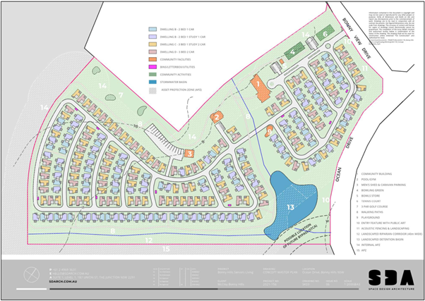
A retirement village proposed for Bonny Hills, near Port Macquarie on the NSW Mid North Coast, is facing resistance from locals concerned about the impact of a third seniors’ living development in the area. The project, to be built in 10 stages...

Section Editor  profile image
by Section Editor
Residents push back against McCloy Group's proposed 241 ILU Port Macquarie retirement village

A retirement village proposed for Bonny Hills, near Port Macquarie on the NSW Mid North Coast, is facing resistance from locals concerned about the impact of a third seniors’ living development in the area. The project, to be built in 10 stages, would comprise up to 241 independent living units as well as facilities including community building, swimming pool, gym, bowling green, tennis court, and parking for caravans. Developers the McCloy Group – chaired by former Newcastle Lord Mayor Jeff McCloy – are seeking to have the land on the corner of Bonny View and Ocean Drives rezoned from rural to allow the village to be built. However, residents are fighting back, with one Change.org petition citing factors including environmental concerns, susceptibility to flooding, strain on public infrastructure, and medical services in the area being at capacity as reasons for the development not to proceed. “Both the traffic impact and ecological assessments are inadequate and if this development goes ahead, it will have a negative impact upon many aspects of our environment, amenity and locality, particularly as an industrial area has been approved for the corner of Ocean Drive and the Ghost Road,” the petition reads; as at time of writing, it has more than 500 signatures. The McCloy Group, which currently owns two villages at Medowie and Maitland, has been contacted for comment.

Read More

puzzles,videos,hash-videos