Uniting Kingscliff redevelopment approved with design changes
The NSW Independent Planning Commission has imposed conditions requiring Uniting NSW/ACT to make strategic design changes to the development.
The NSW Independent Planning Commission has today approved the Not For Profit's State Significant Development Application (SSDA) to redevelop its aged care home in the NSW Northern Rivers.
The Commission has imposed conditions requiring Uniting NSW/ACT to make strategic design changes to the redevelopment to minimise and mitigate overshadowing and privacy impacts and improve its interface with the surrounding suburban context.
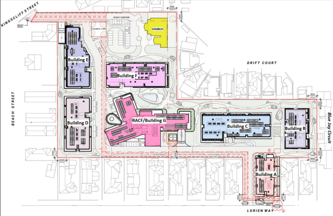
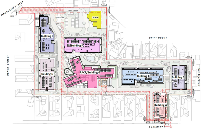
The redevelopment will comprise seven buildings of up to four storeys for 199 independent living units and a 120-bed residential care facility. The development also includes basement car parking, ancillary amenities and landscaping.

History of development
In August 2022, Uniting said it would spend $150 million turning the aged care home into an integrated site featuring about 235 independent retirement living apartments and 120 residential aged care beds, including dementia care places.
Then in May 2024 it lodged the SSDA with the NSW Government for a $233 million seniors independent living village of 199 independent living apartments and 120 residential aged care places. This represented a 56% increase in the cost of the project while reducing the number of homes delivered by 15%.
Uniting NSW.ACT's reaction

Recognising the decision as a clear step forward for older people and the region, Uniting NSW.ACT CEO Tracey Burton said it gives older people in the Tweed region much-needed certainty.
“Our plans for Uniting Kingscliff have been caught in an extended planning process for years. During that time there are many other seniors out there who need accommodation and we have been unable to meet that need," she said.
“Today’s decision means we can finally move forward.”
She added the NSW Government’s increased focus on housing supply and its acknowledgement of the importance of seniors housing and residential aged care, is both welcome and urgently needed.
“Purpose-built accommodation helps older people stay independent for longer, delays the need for higher-level care, and frees up family homes for others during a housing crisis," Tracey said.