Thursday, 30 April 2026

Decision due on $9.5M seniors housing development on Sydney’s Upper North Shore

This is one of a range of boutique seniors living developments in the upmarket Ku-ring-gai Council area, which we reported on last week

The Weekly Source   profile image
by The Weekly Source
Decision due on $9.5M seniors housing development on Sydney’s Upper North Shore

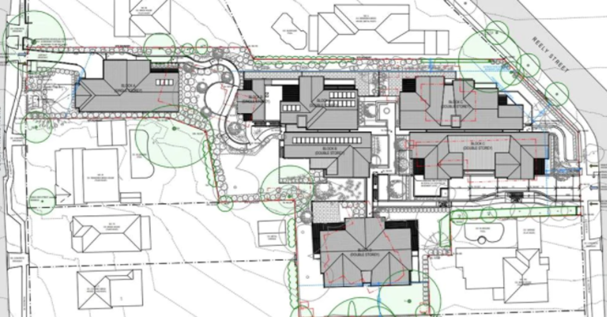
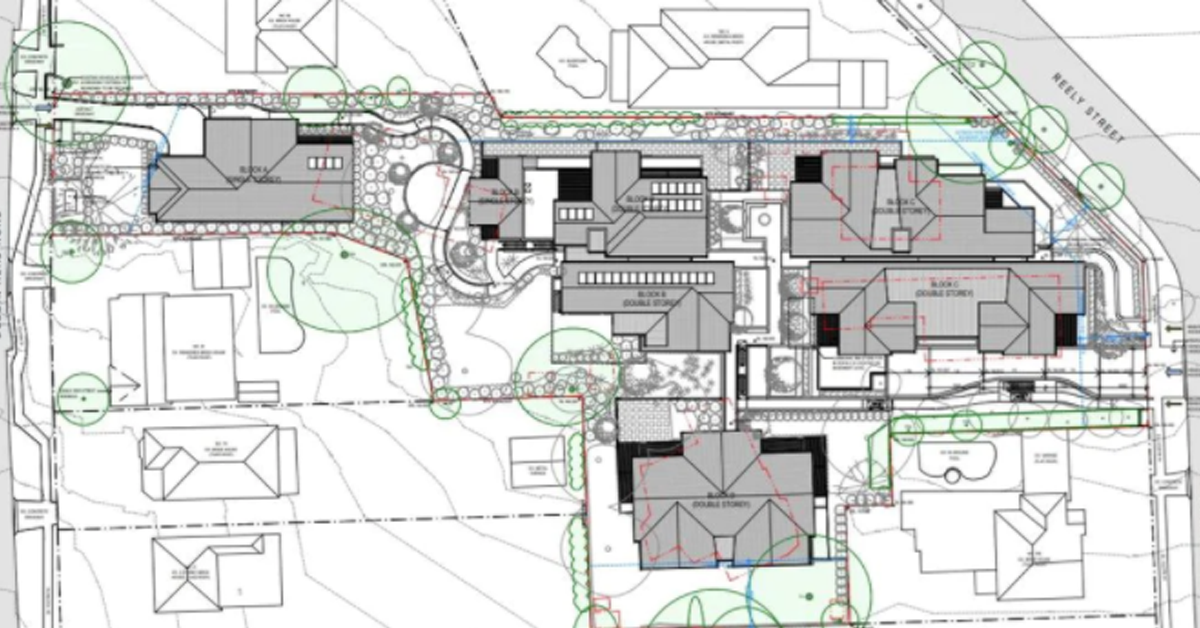
A decision is due to be determined on a controversial development on Sydney’s Upper North Shore that will see 18 seniors’ units built. This is one of a range of boutique seniors living developments in the upmarket Ku-ring-gai Council area, which we reported on last week. Central Element will demolish four single storey homes, dating back to the 1920s, as part of the Pymble Villas proposal, which includes landscaping works and an underground parking space. The median sales price for property in Pymble has been floating around the $2 million mark. The proposal has received 108 submissions from neighbouring property owners, State MP Alister Henskens and the P&C of a local public school. Local resident Richard Whitington told The Daily Telegraph the scale of the development was out of character with the low-density area.

“If they proposed to put eight or 10 units in people may have shrugged their shoulders but 18 takes it over the limit,” he said.

The proposal is due to be approved at the council’s next planning meeting.

Read More

puzzles,videos,hash-videos