Good news for Providence Lifestyle’s proposed Oceanside land lease community
A $70 million 360-home retirement resort is set to receive formal approval from Western Australian State planners.
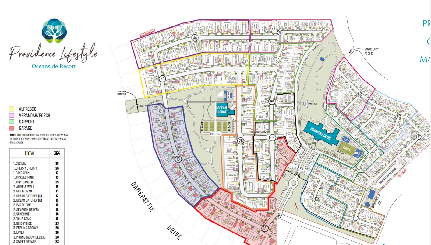
The City of Wanneroo has recommended that Providence Lifestyle’s Oceanside Lifestyle Resort at Two Rocks, 61km northwest of Perth’s CBD, be given the green light.
The land lease community is one of six resorts in the pipeline that Providence Lifestyle founder and director John Wood says will be delivered over the next three years: one in Busselton, three in the City of Wanneroo, and two in the City of Swan.
The city’s recommendation for approval follows mandatory public consultation held last October, which attracted 96 submissions, with an overwhelming majority of 87 in support of the development.

Providence Lifestyle, founded in 2020 by John Green, Brad Denison, James Turnbull and John Wood, already operates land lease communities in Piara Waters, Henley Brook, and Mandurah, and has approved projects in Haynes and Wattle Grove.
The resort, which will sit on a 150,000msq site, will include a gym, cinema, bars, indoor and outdoor pools, pickleball courts, a bowling green, communal gardens, and a wellness retreat.

Each home is proposed to be fitted with solar panels, battery storage, an inverter, and smart metering.
Despite the project not yet technically being granted formal approval, homes are already being sold off the plan, with one-, two- and three-bedroom properties starting at $470,000.